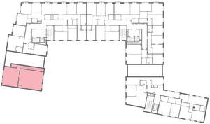
2-к квартира, сданный дом, 75м², 4/9 этаж
39 803 000 ₽ 530 000 ₽ за м²
Центральный район, ЖК Бакунина 33, проспект Бакунина 33
Квартира без отделки, после оформления собственности можно делать ремонт. Общая площадь: 75.1 кв.м., жилая: 38.33 кв.м., площадь просторной кухни-столовой: 18.67 кв.м. Комнаты изолированные, все окна ...
Собственник, 30.09.2025