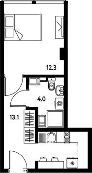
Студия квартира, вторичка, 25м², 7/29 этаж
6 100 000 ₽   248 000 ₽ за м²
Московский район, ЖК Интуит,  Витебский проспект 99к1
Продам  квартиру. Квартира-апартаменты после качественного евро ремонта, что позволит вам сразу же заселиться без дополнительных вложений и ремонтных работ.
Из окон открывается приятный вид на тихий двор, где располож... 
 
Агентство, 12.09.2025