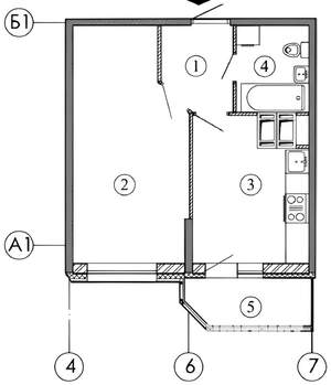
Коттедж 176м², 2-этажный, участок 12 сот.
33 500 000 ₽ 190 900 ₽ за м²
Пушкинский район, Благодатная 194
Пушкин, садоводство Волхонское, ул.Благодатная, д.8)
ДОМ и УЧАСТОК:
Дом уютный, теплый, с шикарными окнами и большими комнатами, правильной формы.
Нигде нет скошенных потолков! Общая плoщадь дома 212...
Агентство, 28.10.2025