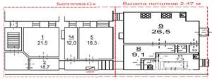
Таунхаус 263м², 3-этажный, участок 2 сот.
62 950 000 ₽ 239 300 ₽ за м²
Курортный район, мкр. пос. Солнечное, ЖК Оллила, Средняя 8к10
Дома построены из натурального кирпича и оснащены деревянными стеклопакетами, что обеспечивает тепло и уют.
Преимущества комплекса:
• Благоустроенная территория с детскими и спортивными площадками, ...
Агентство, 01.10.2025