Коттедж 201м², 1-этажный, участок 10 сот.
35 000 000 ₽ 174 200 ₽ за м²
Курортный район, мкр. пос. Белоостров, Сестрорецкое шоссе 12
Белоостров, Сестрорецкое шоссе.
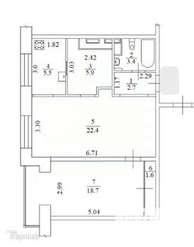
Предлагаем одноэтажный коттедж, площадью 201,2 кв.м на земельном участке 10 соток.(ИЖС). Жилой дом продаётся с полной отделкой и мебелью .
В доме имеется 5 комнат (14,...
Агентство, 13.10.2025