Таунхаус 128м², 2-этажный, участок 3 сот.
33 900 000 ₽ 264 900 ₽ за м²
Курортный район, ЖК Петербургское Садовое кольцо, Грибная 34
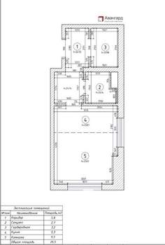
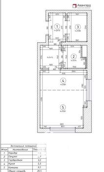
На 1 этаже: кухня- столовая, гостиная , прачечная , санузел. На 2 этаже: 3 спальни ( одна из них мастер спальня) , 2 санузла и двухуровневая гардеробная , внутренний двор, задний двор с выходом на лес...
Агентство, 12.10.2025